Building Summary

Data last updated on: 10/23/2025     Ownership current as of: 10/22/2025     Tax Year: 2025
REID 39365

PIN # 4696-43-6445

Location Address Property Description
2730 BELLS FORK RD SR 1729
   
Property Owner Owner's Mailing Address
EARLEY, JOHN WESLEY;EARLEY, LORI L
2730 BELLS FORK RD
GREENVILLE NC 27858
Parcel
Buildings
Misc Improvements
Land
Deeds
Notes
Sales
Photos
Tax Bill
Map
Building Location Address
2730 BELLS FORK RD
Building Description
01-SFR
Card   of  1
Bldg Type 01-SFR-CONST
Units 1
Living Area (SQFT) 3510
Number of Stories 1.50
Style 2.0-Story
Foundation CONTFOOT
Exterior Alum/Vinyl-Sid
Const Type Gable
Heating HEAT-PUMP
Air Cond CENTRAL
Plumbing Baths (Full):   3
Baths (Half):   1
Extra Fixtures:   0
Total Plumbing Fixtures:   11 
Bedrooms 4
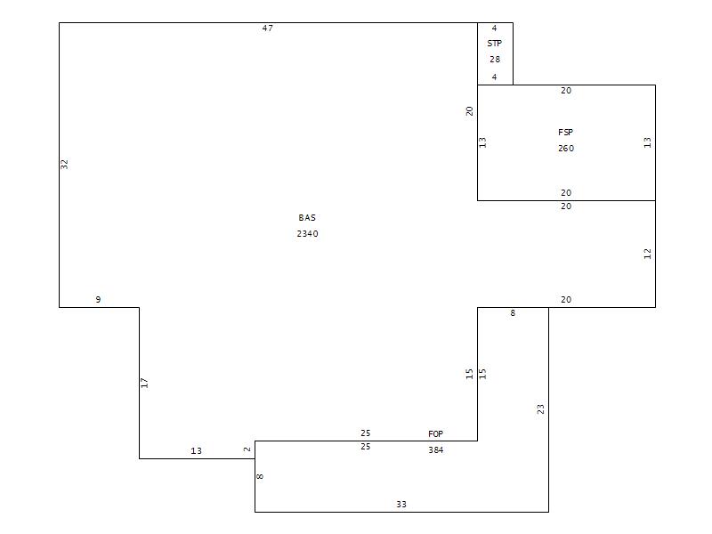
Main Body (SQFT) 2340
Year Built 1982
Additions 5
Effective Year 1995
Remodeled 0
Interior Adj.
Other Features
Building Total & Improvement Details

Grade B-5 122.06%
Percentage Complete 100
Total Adjusted Replacement Cost New $533,130
Physical Depreciation (% Bad) 0%
Depreciated Value $378,522
Economic Depreciation (% Bad) 0%
Functional Depreciation (% Bad) 0%
Total Depreciated Value $378,522
Market Area Factor 1.00
Building Value $378,522
Misc Improvements Value $8,790
Total Improvement Value $387,312

Assessed Land Value $77,000
   
Assessed Total Value $464,312



Addition Summary 
StoryTypeCodeArea
1.00 FINISHED OPEN PORCH FOP 384
1.00 FINISHED SCREEN PORCH FSP 260
1.00 STOOP STP 28
1.00 Partly Unfinished ATTF 608
1.00 FINISHED UPPER STORY FUS 1170
 
Other Improvements 
UnitsDescriptionItemCodeYear% BadValue
38x24 DIMENSIONS GARAGE AVERAGE 1986 80 7790
12x12 DIMENSIONS STORAGE/SHOP AVERAGE 1990 80 1000
 


Building Sketch
Photograph
Building Sketch Building Photo
(Click sketch for bigger image)