Building Summary

Data last updated on: 10/18/2025     Ownership current as of: 10/17/2025     Tax Year: 2025
REID 38995

PIN # 4666-15-8718

Location Address Property Description
4597 DICKINSON AVENUE EX US 264
   
Property Owner Owner's Mailing Address
SMITH, JAMES RANDALL
329 CEDARHURST RD
GREENVILLE NC 27834
Parcel
Buildings
Misc Improvements
Land
Deeds
Notes
Sales
Photos
Tax Bill
Map
Building Location Address
4597 DICKINSON AVENUE EX
Card   of  1        Section   of  1
Building Details

Building Name
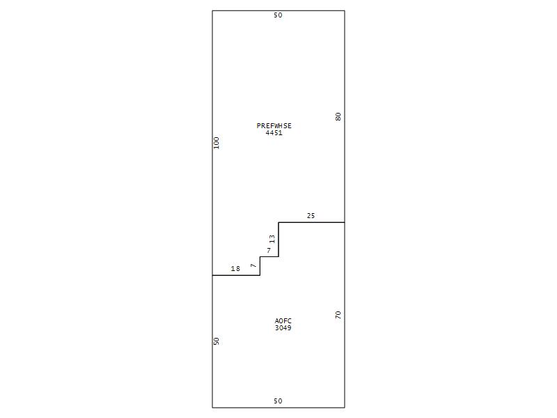
Primary Occupancy Type 06-WHSE-CONST
Primary Occupancy 49-PREFWHSE
Primary Class C
Primary Quality Avg
Year Built 1982
Effective Year 2000
Physical Depreciation (Rating) DEPRECIATION
Physical Depreciation (% Bad) 55.00%
Economic Depreciation (% Bad) 0%
Functional Depreciation (% Bad) 0%
Gross Leasable Area (SQFT) 7500
Remodeled Year
Total Stories 1

Section Details

Occupancy Type 06-WHSE-CONST


Air Conditioning CENTRAL
EXTRA FIXTURES 4
Class C
Depreciation 55%
Depreciation DEPRECIATION
Foundation SPRDFOOT
DIR VENT FIREPL 0
MASON FIREPL 0
Heat HEAT-PUMP
Interior Finish DRYWALL/SHEETROCK
Interior Finish PLYWOOD-PANEL
Occupancy 49-PREFWHSE
Quality Avg
Exterior Walls PREFAB-MET
Building Total & Improvement Details

Total Adjusted Replacement Cost New $614,504
Physical Depreciation (% Bad) 55.00%
Depreciated Value $276,526
Economic Depreciation (% Bad) 0%
Functional Depreciation (% Bad) 0%
Total Depreciated Value $276,526
Market Area Factor 1.00
Building Value $276,526
Misc Improvements Value $3,580
Total Improvement Value $280,106

Assessed Land Value $21,000
   
Assessed Total Value $301,106


Addition Summary 
StoryTypeCodeArea
1.00 OFFICE, AVERAGE AOFC 3049
 
Other Improvements 
UnitsDescriptionItemCodeYear% BadValue
2800 UNITS PAVING ASPHALT 2000 68 3580
 


Building Sketch
Photograph
Building Sketch Building Photo
(Click sketch for bigger image)