Building Summary

Data last updated on: 11/6/2025     Ownership current as of: 11/5/2025     Tax Year: 2025
REID 3850

PIN # 4698-93-1694

Location Address Property Description
3151 MAYE LN SCHOOL HOUSE
   
Property Owner Owner's Mailing Address
JUANICO, JAVIER VILLEDA
1523 VOA SITE C RD
GREENVILLE NC 27834
Parcel
Buildings
Misc Improvements
Land
Deeds
Notes
Sales
Photos
Tax Bill
Map
Building Location Address
3151 MAYE LN
Building Description
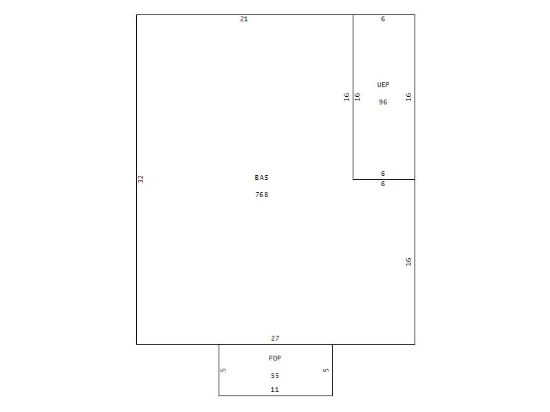
50-RURALHMST
Card   of  1
Bldg Type 01-SFR-CONST
Units 1
Living Area (SQFT) 768
Number of Stories 1.00
Style 1.0-Story
Foundation PIERS
Exterior SINGLE-SIDING
Const Type Gable
Heating NONE
Air Cond none
Plumbing Baths (Full):   0
Baths (Half):   0
Extra Fixtures:   0
Total Plumbing Fixtures:   0 
Bedrooms 2
Main Body (SQFT) 768
Year Built 1911
Additions 2
Effective Year 1960
Remodeled 0
Interior Adj.
Other Features
Building Total & Improvement Details

Grade D 83.5%
Percentage Complete 100
Total Adjusted Replacement Cost New $89,540
Physical Depreciation (% Bad) 0%
Depreciated Value $17,908
Economic Depreciation (% Bad) 0%
Functional Depreciation (% Bad) 10%
Total Depreciated Value $16,117
Market Area Factor 1.00
Building Value $16,117
Misc Improvements Value
Total Improvement Value $16,117

Assessed Land Value $20,700
   
Assessed Total Value $36,817



Addition Summary 
StoryTypeCodeArea
1.00 FINISHED OPEN PORCH FOP 55
1.00 UNFINISHED ENCLOSED PORCH UEP 96
 
Other Improvements 
 


Building Sketch
Photograph
Building Sketch Building Photo
(Click sketch for bigger image)