Building Summary

Data last updated on: 10/17/2025     Ownership current as of: 10/17/2025     Tax Year: 2025
REID 38417

PIN # 4697-14-8816

Location Address Property Description
101 6B DAVID DR TWIN OAKS, COURT B UN:6 BU:1
   
Property Owner Owner's Mailing Address
BRYAN, TANISHA
101 DAVID DR UNIT 6B
GREENVILLE NC 27858
Parcel
Buildings
Misc Improvements
Land
Deeds
Notes
Sales
Photos
Tax Bill
Map
Building Location Address
101 DAVID DR
Building Description
04-COND/TWN/DUP-SFR
Card   of  1
Bldg Type 03-MFR-CONST
Units 1
Living Area (SQFT) 1024
Number of Stories 2.00
Style Condo
Foundation SPRDFOOT
Exterior BRICK/VINYL
Const Type Gable
Heating HEAT-PUMP
Air Cond CENTRAL
Plumbing Baths (Full):   1
Baths (Half):   1
Extra Fixtures:   0
Total Plumbing Fixtures:   5 
Bedrooms 2
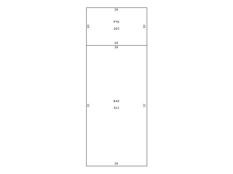
Main Body (SQFT) 512
Year Built 1981
Additions 2
Effective Year 1992
Remodeled 0
Interior Adj.
Other Features
Building Total & Improvement Details

Grade C-5 93.4%
Percentage Complete 100
Total Adjusted Replacement Cost New $125,392
Physical Depreciation (% Bad) 0%
Depreciated Value $75,235
Economic Depreciation (% Bad) 29%
Functional Depreciation (% Bad) 0%
Total Depreciated Value $53,417
Market Area Factor 1.00
Building Value $53,417
Misc Improvements Value
Total Improvement Value $53,417

Assessed Land Value $20,000
   
Assessed Total Value $73,417



Addition Summary 
StoryTypeCodeArea
1.00 PATIO PTO 160
1.00 FINISHED UPPER STORY FUS 512
 
Other Improvements 
 


Building Sketch
Photograph
Building Sketch Building Photo
(Click sketch for bigger image)