Building Summary

Data last updated on: 10/18/2025     Ownership current as of: 10/17/2025     Tax Year: 2025
REID 38301

PIN # 4668-67-8935

Location Address Property Description
521 HUNTINGRIDGE RD HUNTINGRIDGE LO:21
   
Property Owner Owner's Mailing Address
WILLIAMS, REGINALD;BOYER WILLIAMS, BETTIE
603 MILL RUN RD
GREENVILLE NC 27834
Parcel
Buildings
Misc Improvements
Land
Deeds
Notes
Sales
Photos
Tax Bill
Map
Building Location Address
521 HUNTINGRIDGE RD
Building Description
08-DUPLEX/TRIPLEX
Card   of  1
Bldg Type 03-MFR-CONST
Units 2
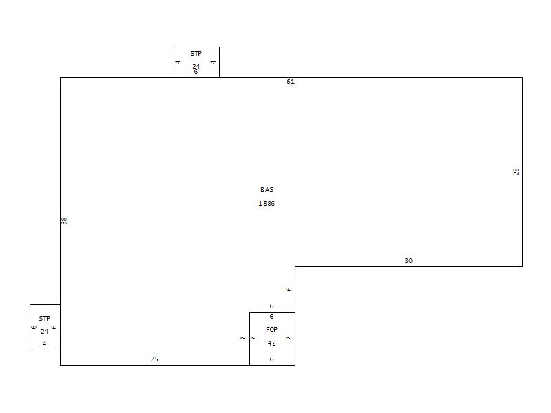
Living Area (SQFT) 1886
Number of Stories 1.00
Style 1.0-Story
Foundation CONTFOOT
Exterior FACE-BRK
Const Type Gable
Heating HEAT-PUMP
Air Cond CENTRAL
Plumbing Baths (Full):   0
Baths (Half):   0
Extra Fixtures:   5
Total Plumbing Fixtures:   5 
Bedrooms 2
Main Body (SQFT) 1886
Year Built 1983
Additions 3
Effective Year 1990
Remodeled 0
Interior Adj.
Other Features
Building Total & Improvement Details

Grade C+5 107.35%
Percentage Complete 100
Total Adjusted Replacement Cost New $242,344
Physical Depreciation (% Bad) 0%
Depreciated Value $135,713
Economic Depreciation (% Bad) 0%
Functional Depreciation (% Bad) 0%
Total Depreciated Value $135,713
Market Area Factor 1.00
Building Value $135,713
Misc Improvements Value
Total Improvement Value $135,713

Assessed Land Value $27,000
   
Assessed Total Value $162,713



Addition Summary 
StoryTypeCodeArea
1.00 STOOP STP 24
1.00 FINISHED OPEN PORCH FOP 42
1.00 STOOP STP 24
 
Other Improvements 
 


Building Sketch
Photograph
Building Sketch Building Photo
(Click sketch for bigger image)