Building Summary

Data last updated on: 10/19/2025     Ownership current as of: 10/17/2025     Tax Year: 2025
REID 3774

PIN # 4785-02-4425

Location Address Property Description
255 W RAILROAD ST BETHEL TOWN OF LO:P2,PT3 3&5' STRIP
   
Property Owner Owner's Mailing Address
SILVER, MATTHEW J
255 W RAILROAD ST
BETHEL NC 27812
Parcel
Buildings
Misc Improvements
Land
Deeds
Notes
Sales
Photos
Tax Bill
Map
Building Location Address
255 W RAILROAD ST
Building Description
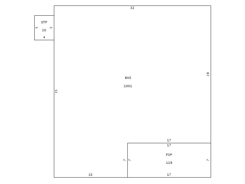
01-SFR
Card   of  1
Bldg Type 01-SFR-CONST
Units 1
Living Area (SQFT) 1001
Number of Stories 1.00
Style 1.0-Story
Foundation CONTFOOT
Exterior FACE-BRK
Const Type Gable
Heating BASEBOARD
Air Cond none
Plumbing Baths (Full):   1
Baths (Half):   0
Extra Fixtures:   0
Total Plumbing Fixtures:   3 
Bedrooms 2
Main Body (SQFT) 1001
Year Built 1964
Additions 2
Effective Year 1985
Remodeled 0
Interior Adj.
Other Features
Building Total & Improvement Details

Grade C 100%
Percentage Complete 100
Total Adjusted Replacement Cost New $151,048
Physical Depreciation (% Bad) 0%
Depreciated Value $83,076
Economic Depreciation (% Bad) 0%
Functional Depreciation (% Bad) 0%
Total Depreciated Value $83,076
Market Area Factor 1.00
Building Value $83,076
Misc Improvements Value $1,660
Total Improvement Value $84,736

Assessed Land Value $10,000
   
Assessed Total Value $94,736



Addition Summary 
StoryTypeCodeArea
1.00 STOOP STP 20
1.00 FINISHED OPEN PORCH FOP 119
 
Other Improvements 
UnitsDescriptionItemCodeYear% BadValue
13x10 DIMENSIONS STORAGE/SHOP AVERAGE 1985 80 900
10x10 DIMENSIONS STORAGE/SHOP AVERAGE 1995 78 760
 


Building Sketch
Photograph
Building Sketch Building Photo
(Click sketch for bigger image)