Building Summary

Data last updated on: 10/31/2025     Ownership current as of: 10/30/2025     Tax Year: 2025
REID 34748

PIN # 4618-13-3886

Location Address Property Description
8063 STANTONSBURG RD MARVIN HORTON LO:5
   
Property Owner Owner's Mailing Address
GUTIERREZ, PEDRO LEON
8063 STANTONSBURG RD
FARMVILLE NC 27828
Parcel
Buildings
Misc Improvements
Land
Deeds
Notes
Sales
Photos
Tax Bill
Map
Building Location Address
8063 STANTONSBURG RD
Building Description
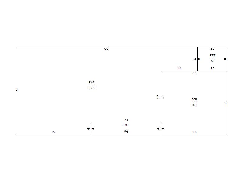
01-SFR
Card   of  1
Bldg Type 01-SFR-CONST
Units 1
Living Area (SQFT) 1396
Number of Stories 1.00
Style 1.0-Story
Foundation CONTFOOT
Exterior FACE-BRK
Const Type Gable
Heating HEAT-PUMP
Air Cond CENTRAL
Plumbing Baths (Full):   2
Baths (Half):   0
Extra Fixtures:   0
Total Plumbing Fixtures:   6 
Bedrooms 3
Main Body (SQFT) 1396
Year Built 1978
Additions 3
Effective Year 1990
Remodeled 0
Interior Adj.
Other Features
Building Total & Improvement Details

Grade C 100%
Percentage Complete 100
Total Adjusted Replacement Cost New $234,471
Physical Depreciation (% Bad) 0%
Depreciated Value $147,717
Economic Depreciation (% Bad) 0%
Functional Depreciation (% Bad) 0%
Total Depreciated Value $147,717
Market Area Factor 1.00
Building Value $147,717
Misc Improvements Value $1,070
Total Improvement Value $148,787

Assessed Land Value $20,000
   
Assessed Total Value $168,787



Addition Summary 
StoryTypeCodeArea
1.00 FINISHED OPEN PORCH FOP 92
1.00 FINISHED GARAGE FGR 462
1.00 FINISHED STORAGE FST 80
 
Other Improvements 
UnitsDescriptionItemCodeYear% BadValue
8x12 DIMENSIONS STORAGE/SHOP AVERAGE 2000 68 1070
 


Building Sketch
Photograph
Building Sketch Building Photo
(Click sketch for bigger image)