Building Summary

Data last updated on: 10/17/2025     Ownership current as of: 10/17/2025     Tax Year: 2025
REID 34323

PIN # 4666-05-8165

Location Address Property Description
4685 DICKINSON AVENUE EX 4685 DICKINSON AV EXT
   
Property Owner Owner's Mailing Address
MOW PROPERTIES LLC
115 BELLS ST
GREENVILLE NC 27858
Parcel
Buildings
Misc Improvements
Land
Deeds
Notes
Sales
Photos
Tax Bill
Map
Building Location Address
4685 DICKINSON AVENUE EX
Card   of  1        Section   of  1
Building Details

Building Name
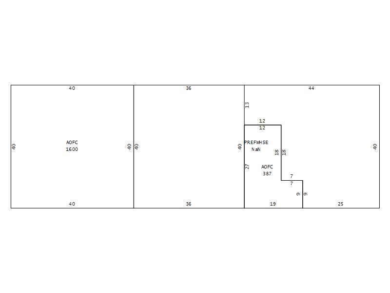
Primary Occupancy Type 06-WHSE-CONST
Primary Occupancy 49-PREFWHSE
Primary Class C
Primary Quality Avg
Year Built 1978
Effective Year 1978
Physical Depreciation (Rating) DEPRECIATION
Physical Depreciation (% Bad) 70.00%
Economic Depreciation (% Bad) 0%
Functional Depreciation (% Bad) 0%
Gross Leasable Area (SQFT) 4800
Remodeled Year
Total Stories 1

Section Details

Occupancy Type 06-WHSE-CONST


Depreciation 70%
Depreciation DEPRECIATION
Interior Finish MINIMUM
Foundation SPRDFOOT
EXTRA FIXTURES 10
Occupancy 49-PREFWHSE
Air Conditioning none
Heat NONE
Class C
Quality Avg
Exterior Walls CONC-BLOCK
MASON FIREPL 0
DIR VENT FIREPL 0
Building Total & Improvement Details

Total Adjusted Replacement Cost New $397,151
Physical Depreciation (% Bad) 70.00%
Depreciated Value $119,145
Economic Depreciation (% Bad) 0%
Functional Depreciation (% Bad) 0%
Total Depreciated Value $119,145
Market Area Factor 1.00
Building Value $119,145
Misc Improvements Value $3,960
Total Improvement Value $123,105

Assessed Land Value $20,000
   
Assessed Total Value $143,105


Addition Summary 
StoryTypeCodeArea
1.00 OFFICE, AVERAGE AOFC 1600
1.00 OFFICE, AVERAGE AOFC 387
 
Other Improvements 
UnitsDescriptionItemCodeYear% BadValue
500 UNITS FENCE CHAIN LINK 6 FOOT 1978 80 3300
100 UNITS FENCE CHAIN LINK 6 FOOT 1978 80 660
 


Building Sketch
Photograph
Building Sketch Building Photo
(Click sketch for bigger image)