Building Summary

Data last updated on: 10/23/2025     Ownership current as of: 10/22/2025     Tax Year: 2025
REID 3285

PIN # 4696-23-7512

Location Address Property Description
4101 CHARLES BV BAGGETT/BYRUM/BRILEY 1971 LO:2
   
Property Owner Owner's Mailing Address
MILTON, MORGAN EILISE;MILTON, ALAN JOSEPH II
4101 CHARLES BV
GREENVILLE NC 27858
Parcel
Buildings
Misc Improvements
Land
Deeds
Notes
Sales
Photos
Tax Bill
Map
Building Location Address
4101 CHARLES BV
Building Description
01-SFR
Card   of  1
Bldg Type 01-SFR-CONST
Units 1
Living Area (SQFT) 1929
Number of Stories 1.00
Style 1.5-Story
Foundation CONTFOOT
Exterior FACE-BRK
Const Type Gable
Heating FORCED-AIR-DUCTED
Air Cond CENTRAL
Plumbing Baths (Full):   2
Baths (Half):   0
Extra Fixtures:   0
Total Plumbing Fixtures:   6 
Bedrooms 3
Main Body (SQFT) 1929
Year Built 1979
Additions 5
Effective Year 1995
Remodeled 0
Interior Adj.
Other Features
Building Total & Improvement Details

Grade C 100%
Percentage Complete 100
Total Adjusted Replacement Cost New $317,223
Physical Depreciation (% Bad) 0%
Depreciated Value $225,228
Economic Depreciation (% Bad) 0%
Functional Depreciation (% Bad) 0%
Total Depreciated Value $225,228
Market Area Factor 1.00
Building Value $225,228
Misc Improvements Value $2,980
Total Improvement Value $228,208

Assessed Land Value $35,000
   
Assessed Total Value $263,208



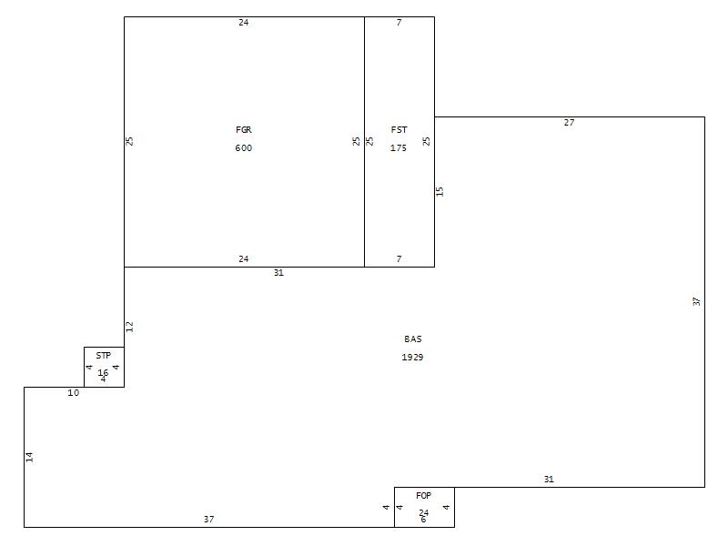
Addition Summary 
StoryTypeCodeArea
1.00 FINISHED STORAGE FST 175
1.00 FINISHED GARAGE FGR 600
1.00 STOOP STP 16
1.00 FINISHED OPEN PORCH FOP 24
1.00 Partly Unfinished ATTF 1042
 
Other Improvements 
UnitsDescriptionItemCodeYear% BadValue
20x20 DIMENSIONS STORAGE/SHOP AVERAGE 1979 80 2780
20x9 DIMENSIONS SHED FAIR 1979 80 200
 


Building Sketch
Photograph
Building Sketch Building Photo
(Click sketch for bigger image)