Building Summary

Data last updated on: 10/26/2025     Ownership current as of: 10/23/2025     Tax Year: 2025
REID 26669

PIN # 4655-91-6730

Location Address Property Description
2820 HINES RD J L NOBLES DIVISION LO:23 TR:1
   
Property Owner Owner's Mailing Address
ROMERO MAGANA, JAQUELIN
2820 HINES RD
WINTERVILLE NC 28590
Parcel
Buildings
Misc Improvements
Land
Deeds
Notes
Sales
Photos
Tax Bill
Map
Building Location Address
2820 HINES RD
Building Description
54-MANUFHM
Card   of  1
Bldg Type 02-MOBILE-HOME-CONST
Units 1
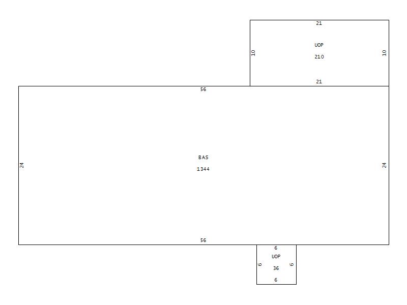
Living Area (SQFT) 1344
Number of Stories 1.00
Style 1.0-Story
Foundation PIERS
Exterior Alum/Vinyl-Sid
Const Type Gable
Heating HEAT-PUMP
Air Cond CENTRAL
Plumbing Baths (Full):   2
Baths (Half):   0
Extra Fixtures:   0
Total Plumbing Fixtures:   6 
Bedrooms 3
Main Body (SQFT) 1344
Year Built 1981
Additions 2
Effective Year 2010
Remodeled 0
Interior Adj.
Other Features
Building Total & Improvement Details

Grade C 100%
Percentage Complete 100
Total Adjusted Replacement Cost New $123,134
Physical Depreciation (% Bad) 0%
Depreciated Value $77,574
Economic Depreciation (% Bad) 0%
Functional Depreciation (% Bad) 0%
Total Depreciated Value $77,574
Market Area Factor 1.00
Building Value $77,574
Misc Improvements Value $5,910
Total Improvement Value $83,484

Assessed Land Value $30,000
   
Assessed Total Value $113,484



Addition Summary 
StoryTypeCodeArea
1.00 UNFINISHED OPEN PORCH UOP 210
1.00 UNFINISHED OPEN PORCH UOP 36
 
Other Improvements 
UnitsDescriptionItemCodeYear% BadValue
24x24 DIMENSIONS GARAGE AVERAGE 1996 76 5910
 


Building Sketch
Photograph
Building Sketch Building Photo
(Click sketch for bigger image)