Building Summary

Data last updated on: 10/25/2025     Ownership current as of: 10/23/2025     Tax Year: 2025
REID 26662

PIN # 4655-91-8781

Location Address Property Description
2819 HINES RD J L NOBLES DIVISION LO:16
   
Property Owner Owner's Mailing Address
KEITH, JONATHAN TAYLOR;KEITH, SHELLEY RAINEY
2540 MILL ST
WINTERVILLE NC 28590
Parcel
Buildings
Misc Improvements
Land
Deeds
Notes
Sales
Photos
Tax Bill
Map
Building Location Address
2819 HINES RD
Building Description
54-MANUFHM
Card   of  1
Bldg Type 02-MOBILE-HOME-CONST
Units 1
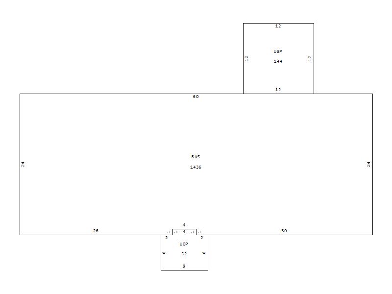
Living Area (SQFT) 1436
Number of Stories 1.00
Style 1.0-Story
Foundation CONTFOOT
Exterior WD-ON-SHEATHING
Const Type Gable
Heating FORCED-AIR-DUCTED
Air Cond none
Plumbing Baths (Full):   2
Baths (Half):   0
Extra Fixtures:   0
Total Plumbing Fixtures:   6 
Bedrooms 3
Main Body (SQFT) 1436
Year Built 1979
Additions 2
Effective Year 2010
Remodeled 0
Interior Adj.
Other Features
Building Total & Improvement Details

Grade C 100%
Percentage Complete 100
Total Adjusted Replacement Cost New $125,133
Physical Depreciation (% Bad) 0%
Depreciated Value $78,834
Economic Depreciation (% Bad) 0%
Functional Depreciation (% Bad) 0%
Total Depreciated Value $78,834
Market Area Factor 1.00
Building Value $78,834
Misc Improvements Value $1,940
Total Improvement Value $80,774

Assessed Land Value $30,000
   
Assessed Total Value $110,774



Addition Summary 
StoryTypeCodeArea
1.00 UNFINISHED OPEN PORCH UOP 52
1.00 UNFINISHED SCREEN PORCH USP 144
 
Other Improvements 
UnitsDescriptionItemCodeYear% BadValue
10x12 DIMENSIONS STORAGE/SHOP AVERAGE 2002 62 1580
8x12 DIMENSIONS SHELTER AVERAGE 2002 62 360
 


Building Sketch
Photograph
Building Sketch Building Photo
(Click sketch for bigger image)