Building Summary

Data last updated on: 11/6/2025     Ownership current as of: 11/5/2025     Tax Year: 2025
REID 2460

PIN # 4698-93-1312

Location Address Property Description
3121 MAYE LN OSCAR MAYE DIVISION LO:6
   
Property Owner Owner's Mailing Address
PIRES, LOU;PIRES, EMANUEL J
3121 MAYE LN
GREENVILLE NC 27834
Parcel
Buildings
Misc Improvements
Land
Deeds
Notes
Sales
Photos
Tax Bill
Map
Building Location Address
3121 MAYE LN
Building Description
95-SFR/MOD
Card   of  1
Bldg Type 01-SFR-CONST
Units 1
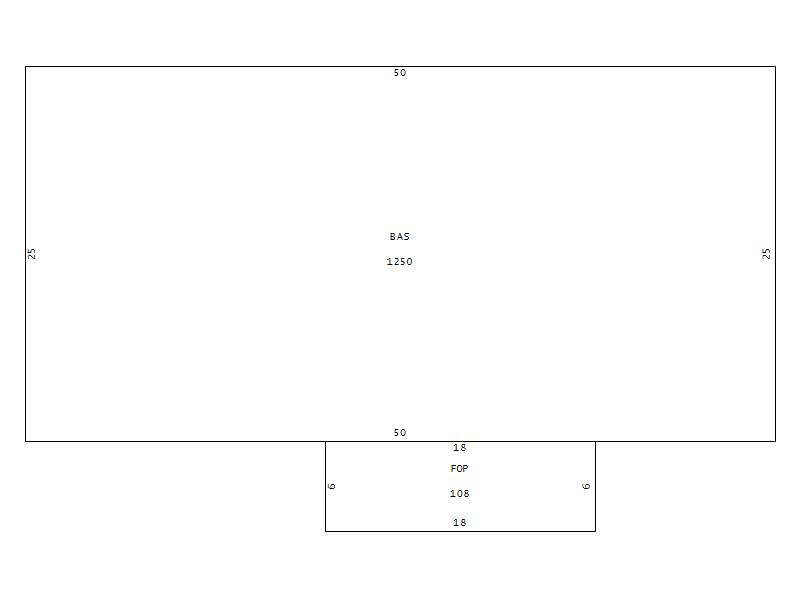
Living Area (SQFT) 1250
Number of Stories 1.00
Style Mod-home
Foundation CONTFOOT
Exterior Alum/Vinyl-Sid
Const Type Gable
Heating HEAT-PUMP
Air Cond CENTRAL
Plumbing Baths (Full):   2
Baths (Half):   0
Extra Fixtures:   0
Total Plumbing Fixtures:   6 
Bedrooms 3
Main Body (SQFT) 1250
Year Built 2002
Additions 1
Effective Year 2002
Remodeled 0
Interior Adj.
Other Features
Building Total & Improvement Details

Grade C 100%
Percentage Complete 100
Total Adjusted Replacement Cost New $177,829
Physical Depreciation (% Bad) 0%
Depreciated Value $142,263
Economic Depreciation (% Bad) 0%
Functional Depreciation (% Bad) 0%
Total Depreciated Value $142,263
Market Area Factor 1.00
Building Value $142,263
Misc Improvements Value $9,580
Total Improvement Value $151,843

Assessed Land Value $18,000
   
Assessed Total Value $169,843



Addition Summary 
StoryTypeCodeArea
1.00 FINISHED OPEN PORCH FOP 108
 
Other Improvements 
UnitsDescriptionItemCodeYear% BadValue
20X20 DIMENSIONS STORAGE/SHOP AVERAGE 2012 31 9580
 


Building Sketch
Photograph
Building Sketch Building Photo
(Click sketch for bigger image)