Building Summary

Data last updated on: 10/20/2025     Ownership current as of: 10/17/2025     Tax Year: 2025
REID 23901

PIN # 4677-73-3739

Location Address Property Description
203 ARLINGTON CI C-3 HILLSDALE S/D
   
Property Owner Owner's Mailing Address
DIXON, KINLEY NICOLE
203 ARLINGTON CI
GREENVILLE NC 27834
Parcel
Buildings
Misc Improvements
Land
Deeds
Notes
Sales
Photos
Tax Bill
Map
Building Location Address
203 ARLINGTON CI
Building Description
01-SFR
Card   of  1
Bldg Type 01-SFR-CONST
Units 1
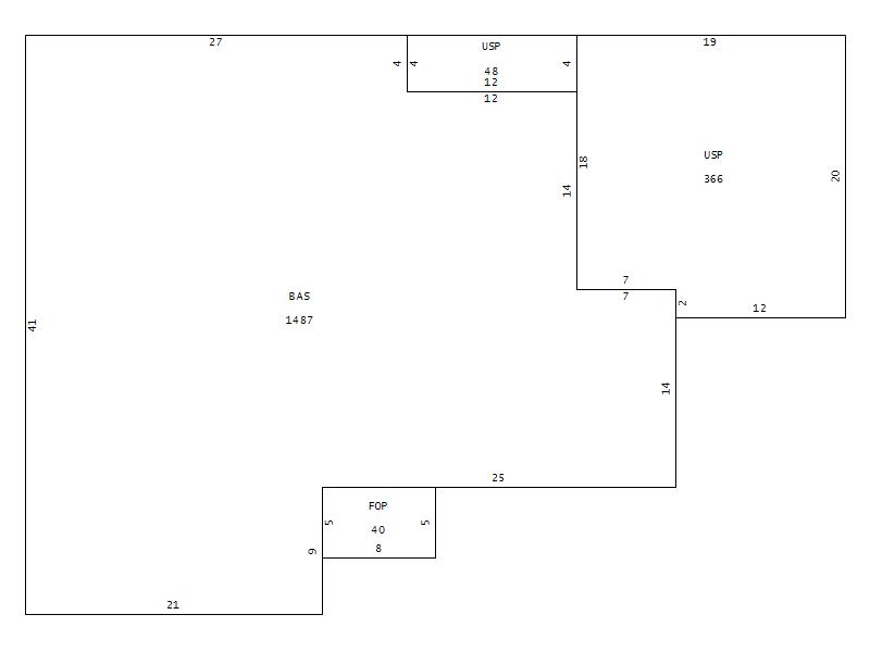
Living Area (SQFT) 1487
Number of Stories 1.00
Style 1.0-Story
Foundation CONTFOOT
Exterior Alum/Vinyl-Sid
Const Type Hip
Heating HEAT-PUMP
Air Cond CENTRAL
Plumbing Baths (Full):   1
Baths (Half):   0
Extra Fixtures:   0
Total Plumbing Fixtures:   3 
Bedrooms 3
Main Body (SQFT) 1487
Year Built 1950
Additions 3
Effective Year 1985
Remodeled 0
Interior Adj.
Other Features
Building Total & Improvement Details

Grade C +3 103.68%
Percentage Complete 100
Total Adjusted Replacement Cost New $225,399
Physical Depreciation (% Bad) 0%
Depreciated Value $123,969
Economic Depreciation (% Bad) 16%
Functional Depreciation (% Bad) 0%
Total Depreciated Value $104,134
Market Area Factor 1.00
Building Value $104,134
Misc Improvements Value $330
Total Improvement Value $104,464

Assessed Land Value $12,500
   
Assessed Total Value $116,964



Addition Summary 
StoryTypeCodeArea
1.00 FINISHED OPEN PORCH FOP 40
1.00 UNFINISHED SCREEN PORCH USP 366
1.00 UNFINISHED SCREEN PORCH USP 48
 
Other Improvements 
UnitsDescriptionItemCodeYear% BadValue
8x6 DIMENSIONS STORAGE/SHOP AVERAGE 1985 80 330
 


Building Sketch
Photograph
Building Sketch Building Photo
(Click sketch for bigger image)