Building Summary

Data last updated on: 10/31/2025     Ownership current as of: 10/30/2025     Tax Year: 2025
REID 22756

PIN # 4618-13-5956

Location Address Property Description
8047 STANTONSBURG RD RES HORTON LO:3
   
Property Owner Owner's Mailing Address
JAMES, JEFFREY W;JAMES, KAREN H
3655 MACGREGOR DOWNS RD
GREENVILLE NC 27834
Parcel
Buildings
Misc Improvements
Land
Deeds
Notes
Sales
Photos
Tax Bill
Map
Building Location Address
8047 STANTONSBURG RD
Building Description
01-SFR
Card   of  1
Bldg Type 01-SFR-CONST
Units 1
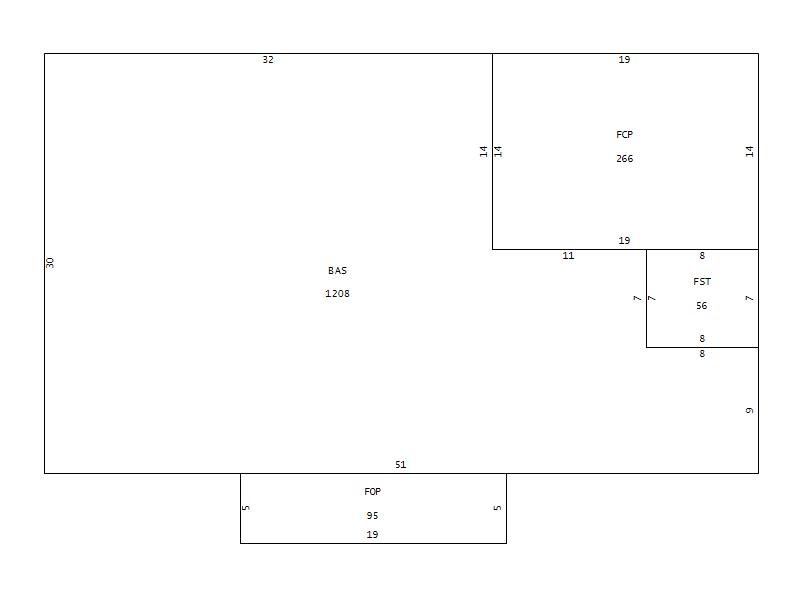
Living Area (SQFT) 1208
Number of Stories 1.00
Style 1.0-Story
Foundation CONTFOOT
Exterior FACE-BRK
Const Type Gable
Heating RADIANT-ELEC
Air Cond CENTRAL
Plumbing Baths (Full):   1
Baths (Half):   0
Extra Fixtures:   0
Total Plumbing Fixtures:   3 
Bedrooms 3
Main Body (SQFT) 1208
Year Built 1974
Additions 3
Effective Year 1990
Remodeled 0
Interior Adj.
Other Features
Building Total & Improvement Details

Grade C 100%
Percentage Complete 100
Total Adjusted Replacement Cost New $188,385
Physical Depreciation (% Bad) 0%
Depreciated Value $118,683
Economic Depreciation (% Bad) 0%
Functional Depreciation (% Bad) 0%
Total Depreciated Value $118,683
Market Area Factor 1.00
Building Value $118,683
Misc Improvements Value $22,870
Total Improvement Value $141,553

Assessed Land Value $20,000
   
Assessed Total Value $161,553



Addition Summary 
StoryTypeCodeArea
1.00 FINISHED OPEN PORCH FOP 95
1.00 FINISHED STORAGE FST 56
1.00 FINISHED CARPORT FCP 266
 
Other Improvements 
UnitsDescriptionItemCodeYear% BadValue
16x20 DIMENSIONS CARPORT FAIR 2000 68 2000
51x30 DIMENSIONS GARAGE AVERAGE 1992 80 13070
37x29 DIMENSIONS GARAGE FAIR 1975 80 7800
 


Building Sketch
Photograph
Building Sketch Building Photo
(Click sketch for bigger image)