Building Summary

Data last updated on: 10/25/2025     Ownership current as of: 10/23/2025     Tax Year: 2025
REID 22419

PIN # 4659-82-8017

Location Address Property Description
3909 NC 43 N HWY 43 RANDOLPH LANDS LO:PT2
   
Property Owner Owner's Mailing Address
PARKER BEY, NATALIE;PARKER BEY, TZADEEQ
3909 NC HIGHWAY 43 N
GREENVILLE NC 27834
Parcel
Buildings
Misc Improvements
Land
Deeds
Notes
Sales
Photos
Tax Bill
Map
Building Location Address
3909 NC 43 N
Building Description
01-SFR
Card   of  1
Bldg Type 01-SFR-CONST
Units 1
Living Area (SQFT) 3088
Number of Stories 1.00
Style 1.0-Story
Foundation CONTFOOT
Exterior FACE-BRK
Const Type Gable
Heating HEAT-PUMP
Air Cond CENTRAL
Plumbing Baths (Full):   4
Baths (Half):   0
Extra Fixtures:   0
Total Plumbing Fixtures:   12 
Bedrooms 4
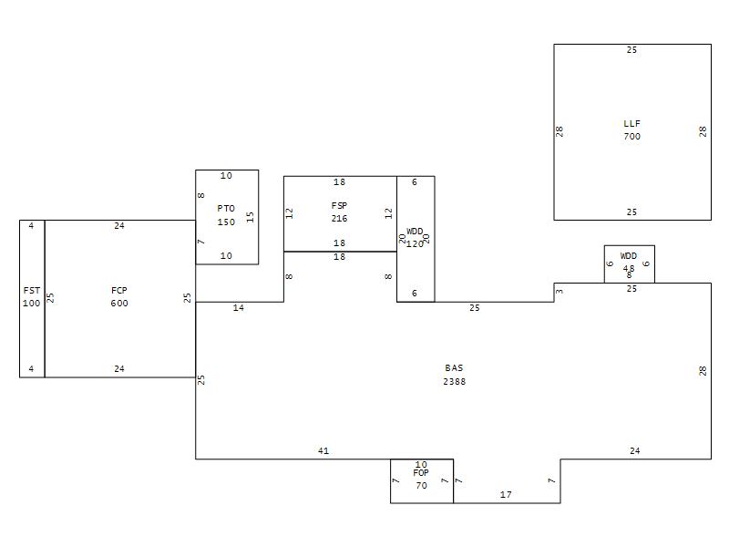
Main Body (SQFT) 2388
Year Built 1964
Additions 8
Effective Year 1995
Remodeled 0
Interior Adj.
Other Features
Building Total & Improvement Details

Grade C 100%
Percentage Complete 100
Total Adjusted Replacement Cost New $399,734
Physical Depreciation (% Bad) 0%
Depreciated Value $283,811
Economic Depreciation (% Bad) 0%
Functional Depreciation (% Bad) 0%
Total Depreciated Value $283,811
Market Area Factor 1.00
Building Value $283,811
Misc Improvements Value
Total Improvement Value $283,811

Assessed Land Value $60,600
   
Assessed Total Value $344,411



Addition Summary 
StoryTypeCodeArea
1.00 WOOD DECK WDD 48
1.00 FINISHED SCREEN PORCH FSP 216
1.00 FINISHED CARPORT FCP 600
1.00 PATIO PTO 150
1.00 FINISHED STORAGE FST 100
1.00 FINISHED OPEN PORCH FOP 70
1.00 WOOD DECK WDD 120
1.00 FINISHED LOWER LEVEL LLF 700
 
Other Improvements 
 


Building Sketch
Photograph
Building Sketch Building Photo
(Click sketch for bigger image)