Building Summary

Data last updated on: 10/20/2025     Ownership current as of: 10/17/2025     Tax Year: 2025
REID 2171

PIN # 4666-15-6790

Location Address Property Description
4603 DICKINSON AVENUE EX MOZINGO & HARRINGTON
   
Property Owner Owner's Mailing Address
BARBER, EDNA P;BARBER, CLYN W JR;BARBER, CLYN W III III;BROOKS, TRUDY BARBER
2940 RED FORBES
WINTERVILLE NC 28590
Parcel
Buildings
Misc Improvements
Land
Deeds
Notes
Sales
Photos
Tax Bill
Map
Building Location Address
4603 DICKINSON AVENUE EX
Card   of  1        Section   of  1
Building Details

Building Name
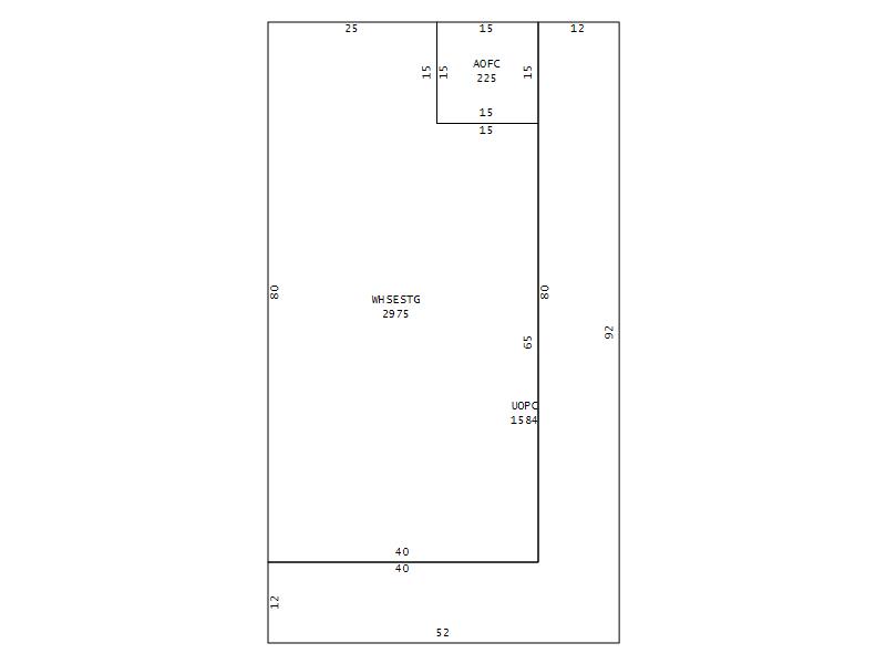
Primary Occupancy Type 06-WHSE-CONST
Primary Occupancy 48-WHSESTG
Primary Class C
Primary Quality Avg
Year Built 1990
Effective Year 1990
Physical Depreciation (Rating) DEPRECIATION
Physical Depreciation (% Bad) 54.00%
Economic Depreciation (% Bad) 0%
Functional Depreciation (% Bad) 0%
Gross Leasable Area (SQFT) 3200
Remodeled Year
Total Stories 1

Section Details

Occupancy Type 06-WHSE-CONST


Heat NONE
Quality Avg
Foundation SPRDFOOT
Occupancy 48-WHSESTG
EXTRA FIXTURES 4
Air Conditioning none
Class C
Exterior Walls PREFIN-METAL
Interior Finish MINIMUM
Depreciation 54%
Depreciation DEPRECIATION
DIR VENT FIREPL 0
MASON FIREPL 0
Building Total & Improvement Details

Total Adjusted Replacement Cost New $273,620
Physical Depreciation (% Bad) 54.00%
Depreciated Value $125,866
Economic Depreciation (% Bad) 0%
Functional Depreciation (% Bad) 0%
Total Depreciated Value $125,866
Market Area Factor 1.00
Building Value $125,866
Misc Improvements Value $17,240
Total Improvement Value $143,106

Assessed Land Value $39,500
   
Assessed Total Value $182,606


Addition Summary 
StoryTypeCodeArea
1.00 UNFINISHED OPEN PORCH UOPC 1584
1.00 OFFICE, AVERAGE AOFC 225
 
Other Improvements 
UnitsDescriptionItemCodeYear% BadValue
40x24 DIMENSIONS SHELTER AVERAGE 1990 80 1870
1320 UNITS FENCE CHAIN LINK 6 FOOT 1990 80 8710
40x24 DIMENSIONS STORAGE/SHOP AVERAGE 1990 80 6660
 


Building Sketch
Photograph
Building Sketch Building Photo
(Click sketch for bigger image)