Building Summary

Data last updated on: 10/17/2025     Ownership current as of: 10/17/2025     Tax Year: 2025
REID 21018

PIN # 4668-77-4002

Location Address Property Description
3116 NC 43 N RES HWY 43
   
Property Owner Owner's Mailing Address
AINSLEY RENTALS LLC
300 WEST SAINT JAMES ST
TARBORO NC 27886
Parcel
Buildings
Misc Improvements
Land
Deeds
Notes
Sales
Photos
Tax Bill
Map
Building Location Address
3116 NC 43 N
Building Description
50-RURALHMST
Card   of  1
Bldg Type 01-SFR-CONST
Units 1
Living Area (SQFT) 1440
Number of Stories 1.00
Style 1.0-Story
Foundation CONTFOOT
Exterior Alum/Vinyl-Sid
Const Type Gable
Heating HEAT-PUMP
Air Cond CENTRAL
Plumbing Baths (Full):   1
Baths (Half):   0
Extra Fixtures:   0
Total Plumbing Fixtures:   3 
Bedrooms 3
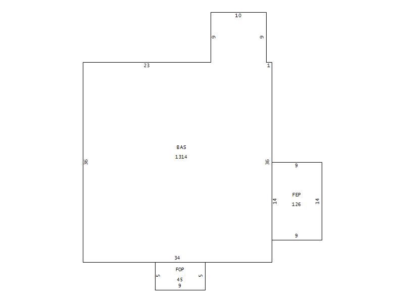
Main Body (SQFT) 1314
Year Built 1952
Additions 2
Effective Year 1980
Remodeled 0
Interior Adj.
Other Features
Building Total & Improvement Details

Grade C 100%
Percentage Complete 100
Total Adjusted Replacement Cost New $186,879
Physical Depreciation (% Bad) 0%
Depreciated Value $85,964
Economic Depreciation (% Bad) 25%
Functional Depreciation (% Bad) 0%
Total Depreciated Value $64,473
Market Area Factor 1.00
Building Value $64,473
Misc Improvements Value $1,400
Total Improvement Value $65,873

Assessed Land Value $27,000
   
Assessed Total Value $92,873



Addition Summary 
StoryTypeCodeArea
1.00 FINISHED OPEN PORCH FOP 45
1.00 FINISHED ENCLOSED PORCH FEP 126
 
Other Improvements 
UnitsDescriptionItemCodeYear% BadValue
8x10 DIMENSIONS STORAGE/SHOP AVERAGE 1991 80 560
12x18 DIMENSIONS CARPORT FAIR 1992 80 840
 


Building Sketch
Photograph
Building Sketch Building Photo
(Click sketch for bigger image)