Building Summary

Data last updated on: 10/20/2025     Ownership current as of: 10/17/2025     Tax Year: 2025
REID 20362

PIN # 4677-73-7659

Location Address Property Description
2607 DUNN ST HILLSDALE LO:4 SE:EXT 2 BL:A
   
Property Owner Owner's Mailing Address
RAMIREZ, INELDA JAQUELINE MILLA;CACERES, LUIS NORBERTO CASTILLO
401 RALEIGH AVE
GREENVILLE NC 27834
Parcel
Buildings
Misc Improvements
Land
Deeds
Notes
Sales
Photos
Tax Bill
Map
Building Location Address
2607 DUNN ST
Building Description
01-SFR
Card   of  1
Bldg Type 01-SFR-CONST
Units 1
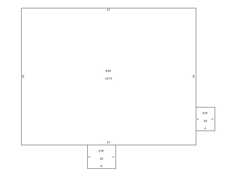
Living Area (SQFT) 1073
Number of Stories 1.00
Style 1.0-Story
Foundation CONTFOOT
Exterior FACE-BRK
Const Type Gable
Heating FORCED-AIR-DUCTED
Air Cond none
Plumbing Baths (Full):   1
Baths (Half):   0
Extra Fixtures:   0
Total Plumbing Fixtures:   3 
Bedrooms 3
Main Body (SQFT) 1073
Year Built 1964
Additions 2
Effective Year 1985
Remodeled 0
Interior Adj.
Other Features
Building Total & Improvement Details

Grade C +3 103.68%
Percentage Complete 100
Total Adjusted Replacement Cost New $165,781
Physical Depreciation (% Bad) 0%
Depreciated Value $91,180
Economic Depreciation (% Bad) 0%
Functional Depreciation (% Bad) 0%
Total Depreciated Value $91,180
Market Area Factor 1.00
Building Value $91,180
Misc Improvements Value
Total Improvement Value $91,180

Assessed Land Value $12,500
   
Assessed Total Value $103,680



Addition Summary 
StoryTypeCodeArea
1.00 STOOP STP 30
1.00 STOOP STP 20
 
Other Improvements 
 


Building Sketch
Photograph
Building Sketch Building Photo
(Click sketch for bigger image)