Building Summary

Data last updated on: 10/23/2025     Ownership current as of: 10/22/2025     Tax Year: 2025
REID 19622

PIN # 4696-23-0490

Location Address Property Description
4030 CHARLES BV RES HWY 43
   
Property Owner Owner's Mailing Address
TENACE, BRIAN
4030 CHARLES BV
GREENVILLE NC 27858
Parcel
Buildings
Misc Improvements
Land
Deeds
Notes
Sales
Photos
Tax Bill
Map
Building Location Address
4030 CHARLES BV
Building Description
50-RURALHMST
Card   of  1
Bldg Type 01-SFR-CONST
Units 1
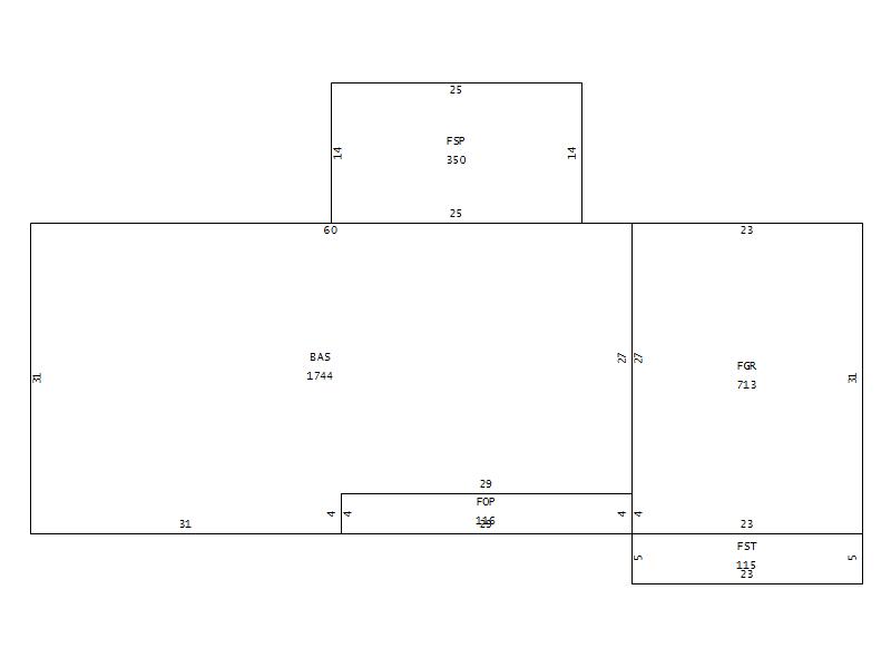
Living Area (SQFT) 1744
Number of Stories 1.00
Style 1.0-Story
Foundation CONTFOOT
Exterior FACE-BRK
Const Type Gable
Heating FORCED-AIR-DUCTED
Air Cond CENTRAL
Plumbing Baths (Full):   2
Baths (Half):   1
Extra Fixtures:   0
Total Plumbing Fixtures:   8 
Bedrooms 3
Main Body (SQFT) 1744
Year Built 1975
Additions 4
Effective Year 2000
Remodeled 0
Interior Adj.
Other Features
Building Total & Improvement Details

Grade C 100%
Percentage Complete 100
Total Adjusted Replacement Cost New $304,696
Physical Depreciation (% Bad) 0%
Depreciated Value $234,616
Economic Depreciation (% Bad) 0%
Functional Depreciation (% Bad) 0%
Total Depreciated Value $234,616
Market Area Factor 1.00
Building Value $234,616
Misc Improvements Value $490
Total Improvement Value $235,106

Assessed Land Value $35,000
   
Assessed Total Value $270,106



Addition Summary 
StoryTypeCodeArea
1.00 FINISHED SCREEN PORCH FSP 350
1.00 FINISHED OPEN PORCH FOP 116
1.00 FINISHED GARAGE FGR 713
1.00 FINISHED STORAGE FST 115
 
Other Improvements 
UnitsDescriptionItemCodeYear% BadValue
18x19 DIMENSIONS CARPORT POOR 2000 68 490
 


Building Sketch
Photograph
Building Sketch Building Photo
(Click sketch for bigger image)