Building Summary

Data last updated on: 10/20/2025     Ownership current as of: 10/17/2025     Tax Year: 2025
REID 18034

PIN # 4677-72-3575

Location Address Property Description
205 MILLBROOK ST HILLSDALE LO:22 BL:F
   
Property Owner Owner's Mailing Address
LOYBIZ PROPERTIES LLC
111 COLLEGE AVE
DURHAM NC 27713
Parcel
Buildings
Misc Improvements
Land
Deeds
Notes
Sales
Photos
Tax Bill
Map
Building Location Address
205 MILLBROOK ST
Building Description
01-SFR
Card   of  1
Bldg Type 01-SFR-CONST
Units 1
Living Area (SQFT) 1228
Number of Stories 1.00
Style 1.0-Story
Foundation CONTFOOT
Exterior Alum/Vinyl-Sid
Const Type Gable
Heating FORCED-AIR-DUCTED
Air Cond CENTRAL
Plumbing Baths (Full):   1
Baths (Half):   0
Extra Fixtures:   0
Total Plumbing Fixtures:   3 
Bedrooms 2
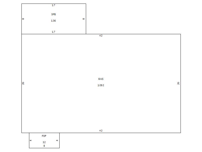
Main Body (SQFT) 1092
Year Built 1960
Additions 2
Effective Year 1985
Remodeled 0
Interior Adj.
Other Features
Building Total & Improvement Details

Grade C +3 103.68%
Percentage Complete 100
Total Adjusted Replacement Cost New $174,473
Physical Depreciation (% Bad) 0%
Depreciated Value $95,960
Economic Depreciation (% Bad) 12%
Functional Depreciation (% Bad) 0%
Total Depreciated Value $84,445
Market Area Factor 1.00
Building Value $84,445
Misc Improvements Value
Total Improvement Value $84,445

Assessed Land Value $12,500
   
Assessed Total Value $96,945



Addition Summary 
StoryTypeCodeArea
1.00 SEMI-FINISHED BASE SFB 136
1.00 FINISHED OPEN PORCH FOP 32
 
Other Improvements 
 


Building Sketch
Photograph
Building Sketch Building Photo
(Click sketch for bigger image)