Building Summary

Data last updated on: 10/31/2025     Ownership current as of: 10/30/2025     Tax Year: 2025
REID 16922

PIN # 4618-14-6041

Location Address Property Description
8039 STANTONSBURG RD MARVIN V HORTON PROPERTY LO:2
   
Property Owner Owner's Mailing Address
HOLLIDAY, BOBBIE N
PO BOX 31065
GREENVILLE NC 27833
Parcel
Buildings
Misc Improvements
Land
Deeds
Notes
Sales
Photos
Tax Bill
Map
Building Location Address
8039 STANTONSBURG RD
Building Description
01-SFR
Card   of  1
Bldg Type 01-SFR-CONST
Units 1
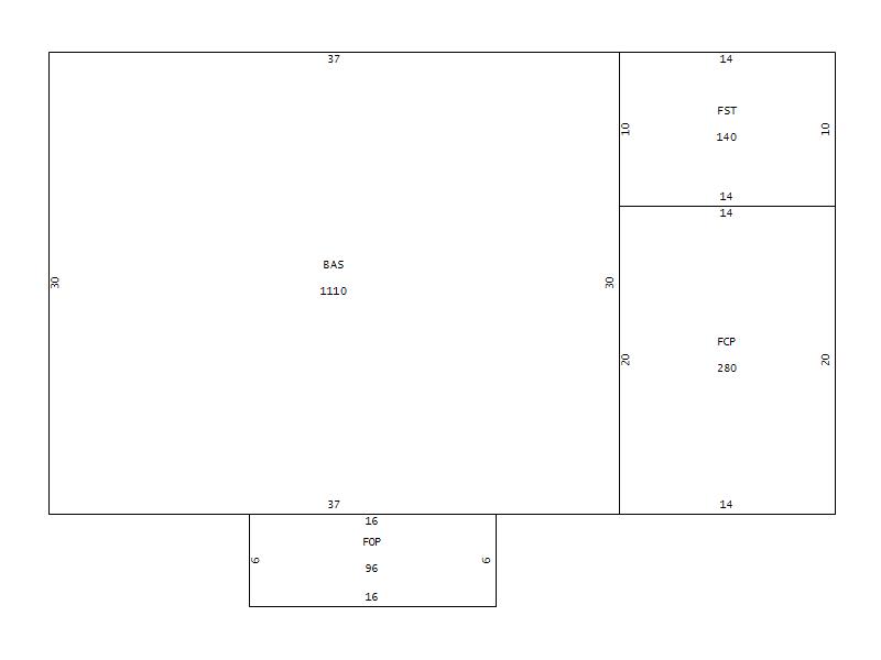
Living Area (SQFT) 1110
Number of Stories 1.00
Style 1.0-Story
Foundation CONTFOOT
Exterior FACE-BRK
Const Type Gable
Heating RADIANT-ELEC
Air Cond CENTRAL
Plumbing Baths (Full):   1
Baths (Half):   0
Extra Fixtures:   0
Total Plumbing Fixtures:   3 
Bedrooms 3
Main Body (SQFT) 1110
Year Built 1973
Additions 3
Effective Year 1990
Remodeled 0
Interior Adj.
Other Features
Building Total & Improvement Details

Grade C 100%
Percentage Complete 100
Total Adjusted Replacement Cost New $180,925
Physical Depreciation (% Bad) 0%
Depreciated Value $113,983
Economic Depreciation (% Bad) 0%
Functional Depreciation (% Bad) 0%
Total Depreciated Value $113,983
Market Area Factor 1.00
Building Value $113,983
Misc Improvements Value
Total Improvement Value $113,983

Assessed Land Value $20,000
   
Assessed Total Value $133,983



Addition Summary 
StoryTypeCodeArea
1.00 FINISHED OPEN PORCH FOP 96
1.00 FINISHED CARPORT FCP 280
1.00 FINISHED STORAGE FST 140
 
Other Improvements 
 


Building Sketch
Photograph
Building Sketch Building Photo
(Click sketch for bigger image)