Building Summary

Data last updated on: 10/25/2025     Ownership current as of: 10/23/2025     Tax Year: 2025
REID 16397

PIN # 4659-81-9869

Location Address Property Description
3899 NC 43 N RES HWY 43 RANDOLPH LANDS LO:2
   
Property Owner Owner's Mailing Address
POWELL, WILLIAM SR;POWELL, DAPHNE
3899 NC 43 N
GREENVILLE NC 27834
Parcel
Buildings
Misc Improvements
Land
Deeds
Notes
Sales
Photos
Tax Bill
Map
Building Location Address
3899 NC 43 N
Building Description
01-SFR
Card   of  1
Bldg Type 01-SFR-CONST
Units 1
Living Area (SQFT) 1681
Number of Stories 1.00
Style 1.0-Story
Foundation CONTFOOT
Exterior FACE-BRK
Const Type Gable
Heating FORCED-AIR-DUCTED
Air Cond CENTRAL
Plumbing Baths (Full):   2
Baths (Half):   0
Extra Fixtures:   0
Total Plumbing Fixtures:   6 
Bedrooms 3
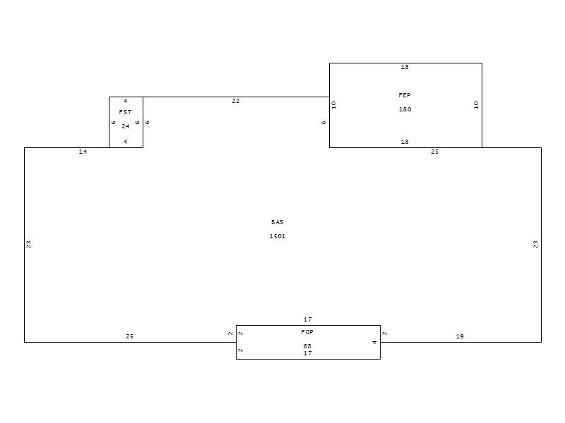
Main Body (SQFT) 1501
Year Built 1961
Additions 3
Effective Year 2000
Remodeled 0
Interior Adj.
Other Features
Building Total & Improvement Details

Grade C 100%
Percentage Complete 100
Total Adjusted Replacement Cost New $235,265
Physical Depreciation (% Bad) 0%
Depreciated Value $181,154
Economic Depreciation (% Bad) 0%
Functional Depreciation (% Bad) 0%
Total Depreciated Value $181,154
Market Area Factor 1.00
Building Value $181,154
Misc Improvements Value $2,210
Total Improvement Value $183,364

Assessed Land Value $60,000
   
Assessed Total Value $243,364



Addition Summary 
StoryTypeCodeArea
1.00 FINISHED STORAGE FST 24
1.00 FINISHED OPEN PORCH FOP 68
1.00 FINISHED ENCLOSED PORCH FEP 180
 
Other Improvements 
UnitsDescriptionItemCodeYear% BadValue
24x22 DIMENSIONS STORAGE/SHOP FAIR 1961 80 2210
 


Building Sketch
Photograph
Building Sketch Building Photo
(Click sketch for bigger image)