Building Summary

Data last updated on: 10/20/2025     Ownership current as of: 10/17/2025     Tax Year: 2025
REID 16166

PIN # 4677-83-3131

Location Address Property Description
405 AZTEC LN GREENBRIER LO:13 BL:F
   
Property Owner Owner's Mailing Address
THOMPSON, MIA;SMITH, TRAVIS
405 AZTEC LN
GREENVILLE NC 27834
Parcel
Buildings
Misc Improvements
Land
Deeds
Notes
Sales
Photos
Tax Bill
Map
Building Location Address
405 AZTEC LN
Building Description
01-SFR
Card   of  1
Bldg Type 01-SFR-CONST
Units 1
Living Area (SQFT) 1325
Number of Stories 1.00
Style 1.0-Story
Foundation CONTFOOT
Exterior FACE-BRK
Const Type Gable
Heating FORCED-AIR-DUCTED
Air Cond CENTRAL
Plumbing Baths (Full):   1
Baths (Half):   0
Extra Fixtures:   0
Total Plumbing Fixtures:   3 
Bedrooms 3
Main Body (SQFT) 1025
Year Built 1971
Additions 2
Effective Year 1985
Remodeled 0
Interior Adj.
Other Features
Building Total & Improvement Details

Grade C +3 103.68%
Percentage Complete 100
Total Adjusted Replacement Cost New $184,493
Physical Depreciation (% Bad) 0%
Depreciated Value $101,471
Economic Depreciation (% Bad) 12%
Functional Depreciation (% Bad) 0%
Total Depreciated Value $89,294
Market Area Factor 1.00
Building Value $89,294
Misc Improvements Value $400
Total Improvement Value $89,694

Assessed Land Value $12,500
   
Assessed Total Value $102,194



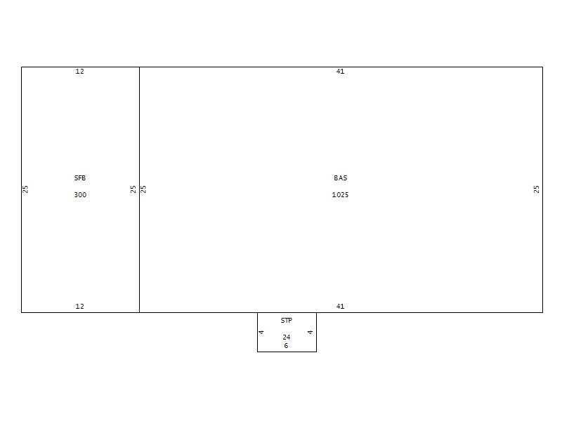
Addition Summary 
StoryTypeCodeArea
1.00 SEMI-FINISHED BASE SFB 300
1.00 STOOP STP 24
 
Other Improvements 
UnitsDescriptionItemCodeYear% BadValue
8x12 DIMENSIONS STORAGE/SHOP FAIR 1974 80 400
 


Building Sketch
Photograph
Building Sketch Building Photo
(Click sketch for bigger image)