Building Summary

Data last updated on: 10/25/2025     Ownership current as of: 10/23/2025     Tax Year: 2025
REID 16159

PIN # 4695-86-6651

Location Address Property Description
4942 NC 43 S JOHN WILLIAM MCNEILL & CHERYL H MCNEILL LO:1
   
Property Owner Owner's Mailing Address
BATES, ANNETTE MICHELLE
4942 NC HIGHWAY 43 S
GREENVILLE NC 27858
Parcel
Buildings
Misc Improvements
Land
Deeds
Notes
Sales
Photos
Tax Bill
Map
Building Location Address
4942 NC 43 S
Building Description
01-SFR
Card   of  1
Bldg Type 01-SFR-CONST
Units 1
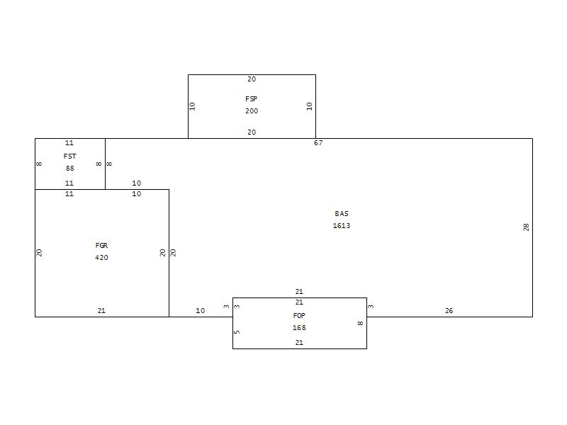
Living Area (SQFT) 1613
Number of Stories 1.00
Style 1.0-Story
Foundation CONTFOOT
Exterior FACE-BRK
Const Type Gable
Heating FORCED-AIR-DUCTED
Air Cond CENTRAL
Plumbing Baths (Full):   2
Baths (Half):   0
Extra Fixtures:   0
Total Plumbing Fixtures:   6 
Bedrooms 3
Main Body (SQFT) 1613
Year Built 1968
Additions 4
Effective Year 1995
Remodeled 0
Interior Adj.
Other Features
Building Total & Improvement Details

Grade C 100%
Percentage Complete 100
Total Adjusted Replacement Cost New $267,588
Physical Depreciation (% Bad) 0%
Depreciated Value $189,987
Economic Depreciation (% Bad) 0%
Functional Depreciation (% Bad) 0%
Total Depreciated Value $189,987
Market Area Factor 1.00
Building Value $189,987
Misc Improvements Value $2,260
Total Improvement Value $192,247

Assessed Land Value $35,000
   
Assessed Total Value $227,247



Addition Summary 
StoryTypeCodeArea
1.00 FINISHED SCREEN PORCH FSP 200
1.00 FINISHED STORAGE FST 88
1.00 FINISHED GARAGE FGR 420
1.00 FINISHED OPEN PORCH FOP 168
 
Other Improvements 
UnitsDescriptionItemCodeYear% BadValue
25x13 DIMENSIONS STORAGE/SHOP AVERAGE 1901 80 2260
 


Building Sketch
Photograph
Building Sketch Building Photo
(Click sketch for bigger image)