Building Summary

Data last updated on: 10/20/2025     Ownership current as of: 10/17/2025     Tax Year: 2025
REID 16098

PIN # 4677-73-3060

Location Address Property Description
204 HILLCREST DR HILLSDALE LO:3 BL:G
   
Property Owner Owner's Mailing Address
HOWARD, CARL L;SPEIGHT, LIZZIE M
204 HILLCREST DR
GREENVILLE NC 27834
Parcel
Buildings
Misc Improvements
Land
Deeds
Notes
Sales
Photos
Tax Bill
Map
Building Location Address
204 HILLCREST DR
Building Description
01-SFR
Card   of  1
Bldg Type 01-SFR-CONST
Units 1
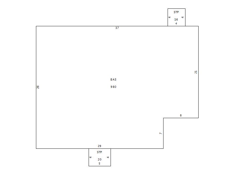
Living Area (SQFT) 980
Number of Stories 1.00
Style 1.0-Story
Foundation CONTFOOT
Exterior Alum/Vinyl-Sid
Const Type Gable
Heating FORCE-AIR-NOT-DUCTED
Air Cond CENTRAL
Plumbing Baths (Full):   1
Baths (Half):   0
Extra Fixtures:   0
Total Plumbing Fixtures:   3 
Bedrooms 3
Main Body (SQFT) 980
Year Built 1949
Additions 2
Effective Year 1985
Remodeled 0
Interior Adj.
Other Features
Building Total & Improvement Details

Grade C +3 103.68%
Percentage Complete 100
Total Adjusted Replacement Cost New $146,926
Physical Depreciation (% Bad) 0%
Depreciated Value $80,809
Economic Depreciation (% Bad) 5%
Functional Depreciation (% Bad) 0%
Total Depreciated Value $76,769
Market Area Factor 1.00
Building Value $76,769
Misc Improvements Value $9,910
Total Improvement Value $86,679

Assessed Land Value $12,500
   
Assessed Total Value $99,179



Addition Summary 
StoryTypeCodeArea
1.00 STOOP STP 16
1.00 STOOP STP 20
 
Other Improvements 
UnitsDescriptionItemCodeYear% BadValue
16x24 DIMENSIONS GARAGE AVERAGE 2008 43 9350
21x21 DIMENSIONS CARPORT POOR 1998 72 560
 


Building Sketch
Photograph
Building Sketch Building Photo
(Click sketch for bigger image)