Building Summary

Data last updated on: 10/19/2025     Ownership current as of: 10/17/2025     Tax Year: 2026
REID 1608

PIN # 4785-02-4885

Location Address Property Description
3719 CHERRY ST CHERRY ST LO:2
   
Property Owner Owner's Mailing Address
SEYBERT, KEVIN W;SEYBERT, MARLA J
3719 CHERRY ST
BETHEL NC 27812
Parcel
Buildings
Misc Improvements
Land
Deeds
Notes
Sales
Photos
Tax Bill
Map
Building Location Address
3719 CHERRY ST
Building Description
01-SFR
Card   of  1
Bldg Type 01-SFR-CONST
Units 1
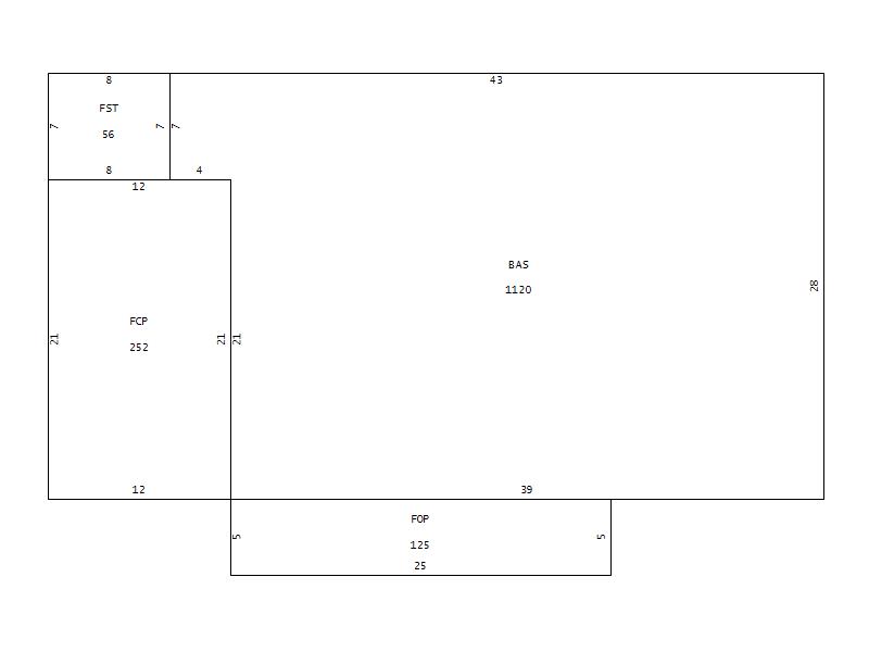
Living Area (SQFT) 1120
Number of Stories 1.00
Style 1.0-Story
Foundation CONTFOOT
Exterior FACE-BRK
Const Type Gable
Heating RADIANT-ELEC
Air Cond none
Plumbing Baths (Full):   1
Baths (Half):   1
Extra Fixtures:   0
Total Plumbing Fixtures:   5 
Bedrooms 3
Main Body (SQFT) 1120
Year Built 1982
Additions 3
Effective Year 2000
Remodeled 0
Interior Adj.
Other Features
Building Total & Improvement Details

Grade C 100%
Percentage Complete 100
Total Adjusted Replacement Cost New $176,225
Physical Depreciation (% Bad) 0%
Depreciated Value $135,693
Economic Depreciation (% Bad) 0%
Functional Depreciation (% Bad) 0%
Total Depreciated Value $135,693
Market Area Factor 1.00
Building Value $135,693
Misc Improvements Value
Total Improvement Value $135,693

Assessed Land Value $10,000
   
Assessed Total Value $145,693



Addition Summary 
StoryTypeCodeArea
1.00 FINISHED STORAGE FST 56
1.00 FINISHED CARPORT FCP 252
1.00 FINISHED OPEN PORCH FOP 125
 
Other Improvements 
 


Building Sketch
Photograph
Building Sketch Building Photo
(Click sketch for bigger image)