Building Summary

Data last updated on: 10/20/2025     Ownership current as of: 10/17/2025     Tax Year: 2025
REID 14660

PIN # 4677-63-9644

Location Address Property Description
2615 S MEMORIAL DR HILLSDALE LO:3 BL:A
   
Property Owner Owner's Mailing Address
PMKJJNICHOLS LLC
818 LISA RUN CT
KERNERSVILLE NC 27284
Parcel
Buildings
Misc Improvements
Land
Deeds
Notes
Sales
Photos
Tax Bill
Map
Building Location Address
2615 S MEMORIAL DR
Building Description
01-SFR
Card   of  1
Bldg Type 01-SFR-CONST
Units 1
Living Area (SQFT) 1537
Number of Stories 1.00
Style 1.0-Story
Foundation CONTFOOT
Exterior Alum/Vinyl-Sid
Const Type Gable
Heating FORCED-AIR-DUCTED
Air Cond CENTRAL
Plumbing Baths (Full):   1
Baths (Half):   1
Extra Fixtures:   0
Total Plumbing Fixtures:   5 
Bedrooms 3
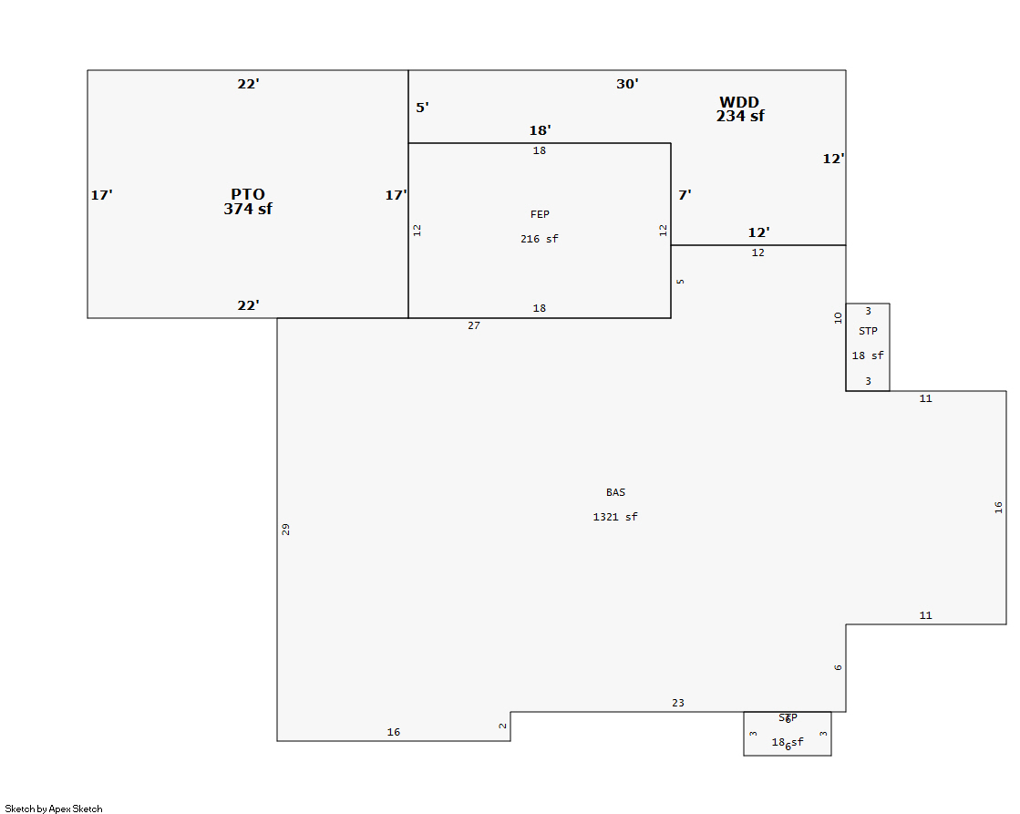
Main Body (SQFT) 1321
Year Built 1940
Additions 5
Effective Year 1985
Remodeled 0
Interior Adj.
Other Features
Building Total & Improvement Details

Grade C +3 103.68%
Percentage Complete 100
Total Adjusted Replacement Cost New $217,267
Physical Depreciation (% Bad) 0%
Depreciated Value $119,497
Economic Depreciation (% Bad) 18%
Functional Depreciation (% Bad) 0%
Total Depreciated Value $97,988
Market Area Factor 1.00
Building Value $97,988
Misc Improvements Value $3,080
Total Improvement Value $101,068

Assessed Land Value $12,500
   
Assessed Total Value $113,568



Addition Summary 
StoryTypeCodeArea
1.00 STOOP STP 18
1.00 STOOP STP 18
1.00 FINISHED ENCLOSED PORCH FEP 216
1.00 PATIO PTO 374
1.00 WOOD DECK WDD 234
 
Other Improvements 
UnitsDescriptionItemCodeYear% BadValue
18x20 DIMENSIONS GARAGE AVERAGE 1946 80 3080
 


Building Sketch
Photograph
Building Sketch Building Photo
(Click sketch for bigger image)