Building Summary

Data last updated on: 10/19/2025     Ownership current as of: 10/17/2025     Tax Year: 2025
REID 14264

PIN # 4775-92-3158

Location Address Property Description
320 W WASHINGTON ST RES. HWY. 64
   
Property Owner Owner's Mailing Address
DREVNAK, ZDENEK;DREVNAK, ALEXANDRA
320 W WASHINGTON ST
BETHEL NC 27812
Parcel
Buildings
Misc Improvements
Land
Deeds
Notes
Sales
Photos
Tax Bill
Map
Building Location Address
320 W WASHINGTON ST
Building Description
01-SFR
Card   of  1
Bldg Type 01-SFR-CONST
Units 1
Living Area (SQFT) 3803
Number of Stories 1.00
Style Ranch
Exterior FACE-BRK
Const Type Gable
Heating FORCED-AIR-DUCTED
Air Cond CENTRAL
Plumbing Baths (Full):   3
Baths (Half):   1
Extra Fixtures:   0
Total Plumbing Fixtures:   11 
Bedrooms 4
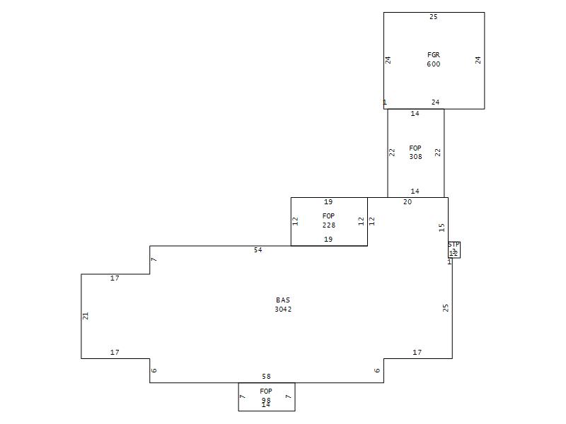
Main Body (SQFT) 3042
Year Built 1962
Additions 6
Effective Year 1985
Remodeled 0
Interior Adj.
Other Features
Building Total & Improvement Details

Grade B 129.41%
Percentage Complete 100
Total Adjusted Replacement Cost New $570,494
Physical Depreciation (% Bad) 0%
Depreciated Value $313,772
Economic Depreciation (% Bad) 0%
Functional Depreciation (% Bad) 0%
Total Depreciated Value $313,772
Market Area Factor 1.00
Building Value $313,772
Misc Improvements Value
Total Improvement Value $313,772

Assessed Land Value $15,050
   
Assessed Total Value $328,822



Addition Summary 
StoryTypeCodeArea
1.00 FINISHED OPEN PORCH FOP 308
1.00 FINISHED GARAGE FGR 600
1.00 STOOP STP 12
1.00 FINISHED OPEN PORCH FOP 228
1.00 FINISHED OPEN PORCH FOP 98
1.00 Basement Partial Finished BSMT 761
 
Other Improvements 
 


Building Sketch
Photograph
Building Sketch Building Photo
(Click sketch for bigger image)