Building Summary

Data last updated on: 10/19/2025     Ownership current as of: 10/17/2025     Tax Year: 2026
REID 13595

PIN # 4785-13-5471

Location Address Property Description
3832 MCWHORTER ST RES MCWHORTER STREET
   
Property Owner Owner's Mailing Address
SWIGER, MADISON LEIGH
PO BOX 366
BETHEL NC 27812
Parcel
Buildings
Misc Improvements
Land
Deeds
Notes
Sales
Photos
Tax Bill
Map
Building Location Address
3832 MCWHORTER ST
Building Description
01-SFR
Card   of  1
Bldg Type 01-SFR-CONST
Units 1
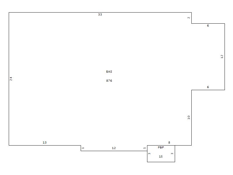
Living Area (SQFT) 876
Number of Stories 1.00
Style 1.0-Story
Foundation CONTFOOT
Exterior Alum/Vinyl-Sid
Const Type Gable
Heating HEAT-PUMP
Air Cond CENTRAL
Plumbing Baths (Full):   1
Baths (Half):   0
Extra Fixtures:   0
Total Plumbing Fixtures:   3 
Bedrooms 2
Main Body (SQFT) 876
Year Built 1950
Additions 1
Effective Year 2000
Remodeled 0
Interior Adj.
Other Features
Building Total & Improvement Details

Grade C 100%
Percentage Complete 100
Total Adjusted Replacement Cost New $130,227
Physical Depreciation (% Bad) 0%
Depreciated Value $100,275
Economic Depreciation (% Bad) 0%
Functional Depreciation (% Bad) 0%
Total Depreciated Value $100,275
Market Area Factor 1.00
Building Value $100,275
Misc Improvements Value
Total Improvement Value $100,275

Assessed Land Value $12,500
   
Assessed Total Value $112,775



Addition Summary 
StoryTypeCodeArea
1.00 FINISHED OPEN PORCH FOP 15
 
Other Improvements 
 


Building Sketch
Photograph
Building Sketch Building Photo
(Click sketch for bigger image)