Building Summary

Data last updated on: 10/31/2025     Ownership current as of: 10/30/2025     Tax Year: 2026
REID 11770

PIN # 4686-84-4036

Location Address Property Description
1805 OLD FIRE TOWER RD JACKSON MH PARK
   
Property Owner Owner's Mailing Address
BELLS FORK VILLAGE LLC
9100 CENTRE POINT DR STE 210
WEST CHESTER OH 45069
Parcel
Buildings
Misc Improvements
Land
Deeds
Notes
Sales
Photos
Tax Bill
Map
Building Location Address
1805 OLD FIRE TOWER RD
Building Description
03-GARDENAPT
Card   of  4
Bldg Type 03-MFR-CONST
Units 24
Living Area (SQFT) 26808
Number of Stories 3.00
Style apartment
Foundation SPRDFOOT
Exterior BRICK/VINYL
Const Type Hip
Heating FORCED-AIR-DUCTED
Air Cond CENTRAL
Plumbing Baths (Full):   48
Baths (Half):   0
Extra Fixtures:   0
Total Plumbing Fixtures:   144 
Bedrooms 60
Main Body (SQFT) 8936
Year Built 2025
Additions 29
Effective Year 2025
Remodeled 0
Interior Adj.
Other Features
Building Total & Improvement Details

Grade C 100%
Percentage Complete 56
Total Adjusted Replacement Cost New $2,073,598
Physical Depreciation (% Bad) 0%
Depreciated Value $2,052,862
Economic Depreciation (% Bad) 0%
Functional Depreciation (% Bad) 0%
Total Depreciated Value $2,052,862
Market Area Factor 1.00
Building Value $2,052,862
Misc Improvements Value
Total Improvement Value $2,052,862

Assessed Land Value $699,600
   
Assessed Total Value $6,627,512



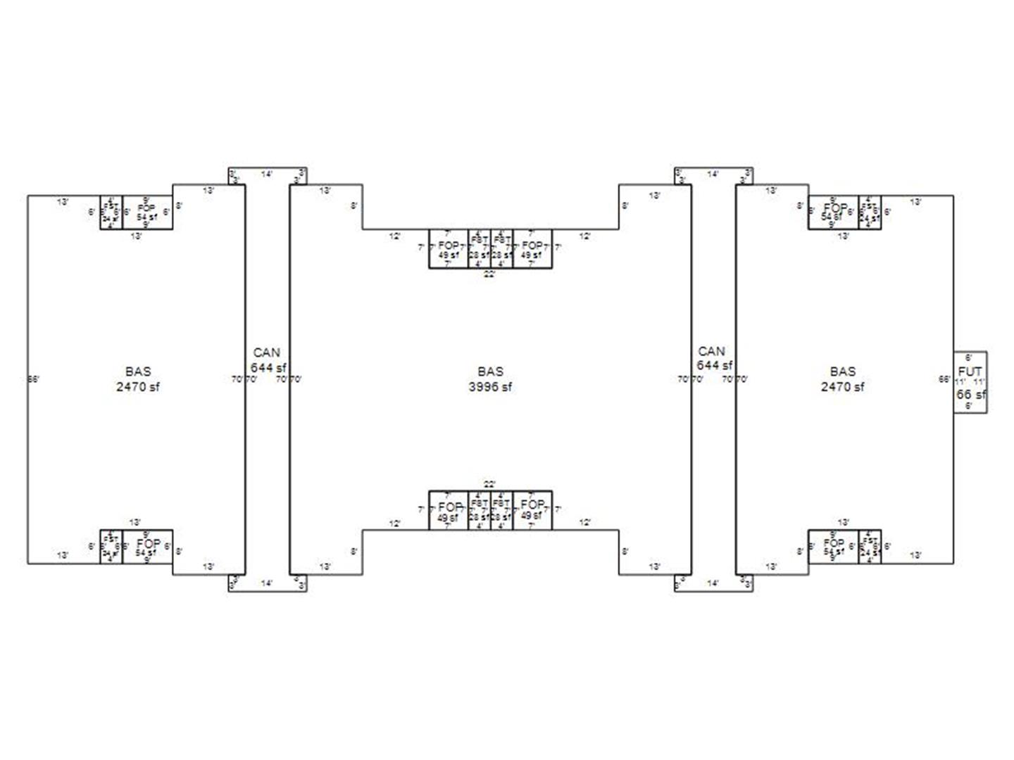
Addition Summary 
StoryTypeCodeArea
1.00 FINISHED STORAGE FST 24
1.00 FINISHED OPEN PORCH FOP 54
1.00 FINISHED STORAGE FST 24
1.00 FINISHED OPEN PORCH FOP 54
1.00 FINISHED OPEN PORCH FOP 54
1.00 FINISHED OPEN PORCH FOP 54
1.00 FINISHED STORAGE FST 24
1.00 FINISHED STORAGE FST 24
1.00 FINISHED OPEN PORCH FOP 49
1.00 FINISHED STORAGE FST 28
1.00 FINISHED STORAGE FST 28
1.00 FINISHED OPEN PORCH FOP 49
1.00 FINISHED OPEN PORCH FOP 49
1.00 FINISHED STORAGE FST 28
1.00 FINISHED STORAGE FST 28
1.00 FINISHED OPEN PORCH FOP 49
1.00 FINISHED UTILITY FUT 66
1.00 CANOPY CAN 644
1.00 CANOPY CAN 644
1.00 FINISHED OPEN PORCH FOP 49
1.00 FINISHED OPEN PORCH FOP 54
1.00 FINISHED STORAGE FST 24
1.00 FINISHED STORAGE FST 28
1.00 FINISHED OPEN PORCH UPPE 49
1.00 FINISHED OPEN PORCH UPPE 54
1.00 FINISHED STORAGE UPPE 24
1.00 FINISHED STORAGE UPPE 28
1.00 CANOPY CAN 630
1.00 FINISHED UPPER STORY FUS 8936
 
Other Improvements 
 


Building Sketch
Photograph
Building Sketch Building Photo
(Click sketch for bigger image)